AutoCAD Plant 3D: трехмерный проект «на лету». Моделирование, расчеты, документация
Компания Autodesk выпустила на российский рынок русскую версию AutoCAD Plant 3D 2012. В этой статье мы протестируем ее и оценим, насколько данный продукт готов к работе сразу после установки на компьютер и что получает инженер для трехмерного проектирования от именитой американской компании. В рамках теста проверим функционал и адаптацию AutoCAD Plant 3D 2012 к российским нормам и правилам проектирования, расскажем о реализованных возможностях этого продукта, которые в первую очередь будут интересны инженерампроектировщикам (а не системным администраторам): об инструментах трехмерного моделирования, экспорте в расчетные программы, получении документации.
Компоновка оборудования и моделирование трубопроводов
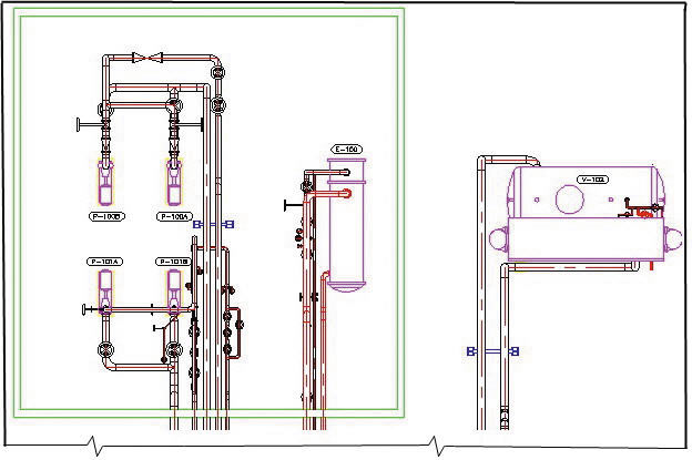
Ввиду отсутствия приличных по объему примеров проектов мы выполним тестирование в упрощенном виде, то есть на основе учебного проекта (рис. 1) программы.

Рис. 1. Пример трехмерной модели, выполненной в AutoCAD Plant 3D 2012 (учебный проект)
Для размещения оборудования в AutoCAD Plant 3D 2012 необходимо вызвать специальный конструктор оборудования, выбрать интересующий объект и разместить его в пространстве модели. Выполнить все эти действия достаточно легко и просто. Перемещать и копировать объекты в пространстве модели можно также с помощью функций AutoCAD.
Инструменты AutoCAD Plant 3D 2012 позволяют легко создавать и редактировать трубопроводы. Особо следует отметить, что в программе реализованы интересные алгоритмы автоматической трассировки трубопроводов, предлагающие вполне адекватные варианты трассы, из которых пользователь может выбрать наиболее подходящий.
Созданную трассу можно легко редактировать, менять наименование элементов трубопровода — Plant 3D предоставляет для этого все необходимые инструменты. К примеру, чтобы заменить типоразмер арматуры в AutoCAD Plant 3D 2012, достаточно выделить этот объект и щелкнуть на одной из «ручек» — появится список вариантов замены (рис. 2).

Рис. 2. Замена типоразмера арматуры в AutoCAD Plant 3D
Обязательным условием при трассировке трубопроводов в AutoCAD Plant 3D 2012 является использование конкретных типоразмеров изделий, а это не всегда возможно на ранних стадиях выполнения проекта, когда еще не определены все типоразмеры изделий. AutoCAD Plant 3D 2012 не позволяет создавать эскизы трасс с минимальной информацией о трубопроводе: такой подход может вызвать затруднения при создании модели и привести к задержке выпуска проектов при внесении изменений в проект по требованию заказчика.
Проверка инженерных решений и экспорт в расчетные программы
В AutoCAD Plant 3D 2012 нет собственного функционала для проверки модели на коллизии. Модель, созданная в Plant 3D, так же как и модели из других программ — Model Studio CS Трубопроводы, AutoPLANT, PLANT4D, — может быть проверена на коллизии в среде Autodesk Navisworks Manage, что потребует дополнительных инвестиций и немалых трудозатрат на подготовку модели к этой проверке. Таким образом, для проверки на коллизии пользователю необходимо приобрести дополнительное программное обеспечение — недешевый Autodesk Navisworks Manage (это приведет к удорожанию рабочего места более чем на 100 тыс. руб.). На рис. 3 представлены результаты проверки на коллизии в среде Autodesk Navisworks, трехмерная модель выполнена в AutoCAD Plant 3D 2012.
Для передачи данных из AutoCAD Plant 3D 2012 в расчетные программы реализован экспорт в формат PCF. При передаче информации из AutoCAD Plant 3D 2012 в программу СТАРТ необходимо тщательно настроить и проверить соответствие параметров модели, иначе результаты расчета могут оказаться неверными. Таким образом, можно считать, что потенциальная возможность передать информацию имеется, но требуется проверка и, возможно, настройка в зависимости от используемой исходной базы деталей.
Передача информации в программу «Изоляция» в AutoCAD Plant 3D 2012 не реализована, поэтому для проектирования изоляции трубопроводов и технологического оборудования требуется ручной ввод информации.

Рис. 3. Результаты проверки на коллизии в среде Autodesk Navisworks
Выпуск проектной документации
Средства AutoCAD Plant 3D 2012 позволяют получать чертежи из трехмерной модели, однако сам чертеж представляет собой набор блоков, что затрудняет его дальнейшее редактирование. Для оформления видов и разрезов автоматически отрисовываются осевые линии и есть возможность простановки аннотаций вручную. Никаких функций автоматической простановки размеров, высотных отметок, выносок в AutoCAD Plant 3D 2012 не реализовано. Оформление видов и разрезов — сложный и трудоемкий процесс, требующий повышенного внимания инженера и являющийся критичным для проекта. Отсутствие специальных функций оформления чертежей делает трехмерное проектирование в AutoCAD Plant 3D 2012 существенно менее продуктивным, чем это могло бы быть. На рис. 4 показан вид, полученный из учебного проекта, при этом аннотации проставлены в ручном режиме.

Рис. 4. Вид, сгенерированный средствами AutoCAD Plant 3D 2012
Что касается получения табличной документации, то в AutoCAD Plant 3D 2012 появился специальный инструмент для создания отчетов — AutoCAD Plant Report Creator. Однако существующие в Report Creator профили для получения документации не соответствуют российским спецификациям, экспликациям и ведомостям. Таким образом, сразу после установки AutoCAD Plant 3D документацию по российским стандартам мы получить не сможем, нам надо будет еще настроить профили, а это также затрудняет применение продукта и выпуск качественной документации.
На рис. 56 приведены спецификации, полученные автоматически средствами AutoCAD Plant Report Creator в стандартной поставке, никаких дополнительных настроек не проводилось.

Рис. 5. Стандартная заказная спецификация, полученная с помощью Report Creator

Рис. 6. Стандартный список арматуры, полученный с помощью Report Creator
Оценки
Компоновка оборудования и моделирование трубопроводов: ![]()
Проверка на коллизии: оценке не подлежит (нет штатных функций)
Экспорт в расчетные программы: ![]()
Выпуск проектной документации: ![]()
Адаптация к российским нормам и правилам проектирования: ![]()
________________
Средняя оценка: 3,5

Выводы
AutoCAD Plant 3D 2012 вполне справляется с построением трехмерных моделей, но имеет существенные недостатки, связанные с выпуском проектной документации по российским стандартам, которые на данный момент в AutoCAD Plant 3D 2012 выполняются практически вручную. Необходимы достаточно большие доработки и настройки.



