Solo Autocad. Статья седьмая
Обработка результатов расчета армирования
Разработка заданий на КЖИ каркасов колонн. Разработка КЖИ
Вот и настал черед поговорить о колоннах. Они представляют собой ключевой элемент здания, требующий весьма специфических приемов работы.
С моей точки зрения, главная особенность колонн как подсистемы здания — в повышенных требованиях к надежности рабочей документации. Естественно, что это требование распространяется не только на изготовление рабочей документации, но и на разработку конструктивной схемы и расчет. Но в настоящих статьях мы говорим только о рабочей документации. Данная особенность колонн и будет проходить красной нитью через всю статью: рабочая документация на колонны должна быть абсолютно надежной. В этом смысле колонны можно сравнить только с проектированием фундаментов.
Следующей особенностью колонн как технологического потока проектирования является то, что в них сборные арматурные изделия применяются чаще, чем в других конструкциях. В основном это пространственные и плоские каркасы. Поэтому в колоннах надо будет наладить работу с комплектами КЖИ.
Итак, для создания конвейера колонн надо решить следующие задачи:
- обработка результатов расчета армирования для представлений результатов армирования в удобном для конструирования виде;
- разработка заданий на КЖИ каркасов колонн;
- разработка КЖИ;
- разработка колонн.
Обработка результатов расчета армирования
Современные МКЭ-комплексы всем хороши, но заданий на колонны делать не умеют. Придется обойтись без конкретных скриншотов, поскольку цикл статей посвящен AutoCAD, а такими заявлениями автору придется критиковать совсем другой класс программ, притом конкретных, что не совсем этично. Поэтому ограничимся общими указаниями на существующие способы выдачи результатов расчета армирования колонн.
Вопервых, это вывод в виде таблиц армирования. К ним расчетчики делают схему нумераций колонн. Минусы такого подхода очевидны: таблицы получаются большие, листать приходится много, возможность ошибки велика.
Вовторых, это вывод результатов непосредственно в цветах, в цифровых значениях армирования на самих элементах колонн в расчетной программе. Данный способ чемто лучше, а чемто хуже: конкретных значений армирования не видно, колонны в проекциях иногда сливаются. Главный же его недостаток — результат расчета армирования колонн состоит из нескольких значений: угловая арматура, арматура по каждой из двух сторон прямоугольной колонны. А еще колонны бывают крестовые, круглые. В общем, объем листов опять растет и возникает риск путаницы.
Есть и еще способы. Например, некоторые программы могут оформить результаты расчета каждой колонны на отдельном листе. Но по сути это опять вынуждает работать с большими объемами информации.
Итак, обобщим минусы различных способов выдачи армирования колонн:
- существующие МКЭ-программы выдают фактически полуфабрикаты, требующие значительной ручной доработки. Если расчетчик вручную доведет задание до конкретики, то с этим еще можно мириться. Хотя это и перерасход рабочего времени расчетчика. Чаще же всего конструкторы получают от расчетчиков эти полуфабрикаты «as is» и обрабатывают их сами. Можно себе представить, каковы скорость, надежность и удобство самостоятельной работы с пачками бумаги конструктора, далекого от расчетных программ. Учитывая повышенную ответственность такой группы конструкций, как колонны, с точки зрения автора, это неприемлемо;
- объем дополнительной работы и ненаглядность представления затрудняют систематизацию информации. Если же необходимо провести унификацию колонн на всем здании для удобства использования готовых каркасов, то задача приобретает нетривиальный характер.
Как же следует выглядеть заданию на разработку рабочей документации на колонны? Оно должно:
- отталкиваться от унификации колонн здания;
- быть понятно человеку, далекому от подробностей работы программ расчета;
- быть однозначным, легко читаемым;
- быть таким компактным, чтобы его можно было окинуть одним взглядом. Тогда будет легко понимать смысл, искать ошибки;
- использовать, разумеется, цветовую информацию — ведь мозг человека легче всего анализирует информацию, представленную в цвете.
На учебных курсах я, перечисляя эти особенности, постепенно рисую на доске это идеальное задание на колонны. Журнальная статья — немного иной жанр, поэтому итог придется предъявить сразу.

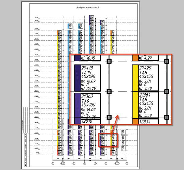
Рис. 1
Итак, на рис. 1 показано задание на изготовление рабочей документации колонн, разработанное в нашей фирме. Автор считает этот способ выдачи задания на проектирование колонн оптимальным. Несколько комментариев, прежде чем начнем его создавать:
- на рисунке изображена развертка всех колонн здания на всю высоту по одной из осей. Возле каждой колонны стоит маркер, полностью описывающий ее армирование. На начальном этапе разработки этой технологии мы пробовали размещать такие маркеры не на разрезе, а на плане, что не прижилось. Такое исполнение затрудняло обработку стыковок каркасов, разработку каркасов на несколько этажей;
- цветом обозначен тип армирования (ТА). Например, после анализа результатов расчета выявлено, что для колонн сечением 400x400 мм достаточно трех типов армирования. Первый (ТА1) — d32 по углам плюс 3xd32 на каждую сторону. Второй (ТА2) — d25 по углам плюс 3xd20 на каждую сторону. Третий (ТА3) — d20 по углам плюс 1xd16 на каждую сторону. Каждый из этих типов получает имя (ТА1, ТА2, ТА3) и свой цвет;
- цвета для типов армирования каждого сечения целесообразно назначать из общего цветового ряда. Например, на объекте есть несколько сечений колонн — 400x400 и 500x500 мм. Тогда для одного сечения (скажем, 400x400 мм) следует выбрать гамму цветов (фиолетовый/синий/голубой), отличную от гаммы для другого сечения (красный/оранжевый/желтый). Наша задача при подборе цветов — сделать так, чтобы с первого же взгляда на развертку было понятно, где каркасы более «тяжелые», где каркасы колонн разного сечения. Это упрощает анализ.
Объем статьи и ее направленность не позволяют подробно остановиться на процессе обработки результатов работы расчетной программы в Excel. На рис. 2 представлен результат подобной обработки результатов расчета армирования пакета ЛираWindows. В этой таблице каждому конечному элементу колонны присвоен тип армирования.

Рис. 2
Таким образом, задача сводится к унификации колонн, то есть к нахождению некоторого количества типов армирования, с помощью которых можно заармировать всё множество колонн здания. Алгоритмы унификации представляют собой отдельную тему для исследований и, разумеется, не могут быть подробно освещены в данной статье. Тем не менее самые общие рекомендации можно привести:
- табличная форма подачи данных Excel и его специализированные приемы работы с таблицами позволяют эффективно обрабатывать данные о всех колоннах зданий. Ручная обработка такого массива представляется медленной и ненадежной, а найденные типы армирования могут носить случайный характер и быть не-оптимальными;
- стандартные возможности Excel, например автофильтрация, позволяют эффективно выбрать все колонны, удовлетворяющие условиям. Например, можно выделить колонны с угловой арматурой d32, у которых на сторону приходится не менее трех стержней d25. Такая обработка позволяет эффективно и надежно отслеживать и выявлять типы армирования. Пример работы автофильтрации приведен на рис. 3. Другой пример эффективного использования стандартных возможностей — это графики. Их можно применять для предварительного поиска типов армирования. Например, на рис. 4 представлен график в виде точек. По оси Х отложена сумма всей расчетной арматуры колонны, а значение Y выставлено условно — 1. На графике хорошо видны основы будущих типов армирования;
- чем больше типов армирования вы примете, тем меньшим будет перерасход арматуры из-за унификации. Однако такой подход спровоцирует усложнение рабочей документации, увеличение числа типов каркасов. При уменьшении числа типов армирования колонн рабочая документация, напротив, упрощается, но ценой повышенного перерасхода арматуры в колоннах здания. Что выбрать — решать вам. Также надо понимать, что число типов армирования еще не есть число каркасов. Изза разной длины и перехлестов стержней число конкретных арматурных каркасов будет гораздо большим. Поэтому к выбору типов армирования и их числа надо подходить ответственно, как к выбору траектории между Сциллой и Харибдой. Кстати, дополнительный расход арматурной стали при унификации можно воспринимать как естественный запас прочности;
- среди монолитных каркасов автору доводилось встречать каркасы с большим количеством сечений колонн. Когда на объекте дватри сечения, это можно понять, но иногда сечений колонн бывает и более пяти. Например, могут сосуществовать сечения 350x300 и 400x400 мм. При этом такие колонны еще и по высоте меняются. Объяснение такому разнобою приводится следующее: сечение колонн оптимизируется под конкретную нагрузку. Автор считает такой подход неверным. Вопервых, происходит усложнение опалубочных форм, а во-вторых, такой же экономичности вполне реально добиться, просто приняв большее число типов армирования внутри стандартного сечения. Экономика железобетонных конструкций позволяет не заниматься чрезмерной экономией объема бетона колонн. А экономия арматурной стали за счет разумного конструирования здания и большего числа типов армирования колонн позволит выйти на неплохие техникоэкономические показатели, сохраняя при этом удобство выполнения монолитных конструкций.

Рис. 3

Рис. 4
Итак, таблица в Excel имеется. Что дальше? А дальше нам надо вычертить в AutoCAD основу таких разверток. Для этого внешними ссылками из файла осей (см. пятую статью) вставляем оси для каждой развертки и высотные отметки. Или вычерчиваем их прямо в исходнике файла. Результат представлен на рис. 5. Это уже готовая подоснова.

Рис. 5
Теперь надо перенести данные об армировании на подоснову. Но сделать это не такто просто. Очевидно, что ручной перенос невозможен. Поэтому поступим следующим образом:
В конечноэлементном комплексе сделаем такие же развертки по осям, но с включенными номерами КЭ (рис. 6).

Рис. 6
Инструментом «Специальная вставка» (_pastespec) вставим эти векторные картинки в файл AutoCAD. Получим линии и текст (рис.7).

Рис. 7
Отмасштабируем эти фрагменты, разнесем примитивы по слоям и наложим их на выполненные ранее подосновы. Поскольку манипулировать придется много, то удобно, чтобы подосновы были выполнены внешней ссылкой или блоком — так можно предотвратить случайные изменения (хотя, конечно, можно и заблокировать соответствующие слои). Результат представлен на рис. 8.

Рис. 8
Теперь наступает самый интересный момент. У нас уже есть таблица, наложенные на подоснову линии колонн и их номера КЭ, взятые из расчетной программы. Как всё это связать? Пора вспомнить о _attin и _attout. Но чем они могут помочь — ведь они работают с атрибутами блоков, а не с текстом?! Ответ очевиден: значит, надо превратить текст в содержимое атрибута блока! Для этого напишем маленькую программку. Но можно взять мою на ресурсе сообщества: http://communities.autodesk.com/?nd=resources__8__311 (это RAR-архив с DVB-файлом внутри, подписан как приложение к седьмой статье) или из блога. Эта программа считывает содержимое текста, удаляет сам примитив текста, а взамен вставляет предложенный пользователем блок. Номер конечного элемента она при этом вписывает в указанные пользователем атрибуты. Окно работы программы представлено на рис. 9, а результат работы — на рис. 10. Конечно, чтото надо подвигать, подергать, но в целом очевидно: половина задачи сделана.

Рис. 9

Рис. 10
Теперь поговорим о самом блоке. Один из наших блоков представлен на рис. 11. «Один из», потому что этот блок меняется в зависимости от конкретной потребности. В блок мы обычно вписываем атрибуты для типа армирования и для значений армирования. Также желательна прямоугольная сплошная заливка цветом ByBlock для цветового маркера типа армирования.

Рис. 11
Что делать дальше — очевидно. Командой _attout мы создаем текстовый файл с содержимым в виде информации всех таких блоков. Затем открываем его в Excel и сортируем по порядку номеров КЭ стандартными функциями (рис. 12).

Рис. 12

Рис. 13

Рис. 14
Для продолжения работы выделяем нужные столбцы из файла с типами армирования (рис. 13) и копируем их в файл, созданный _attout (рис. 14). Работа почти закончена. Теперь надо проверить два скопированных фрагмента на идентичность. Для этого используем функцию Excel ЕСЛИ(). Если два номера КЭ в строке совпадают, то надо написать, например, «ОК», в противном случае — «ВНИМАНИЕ!!!». Копируем, растягиваем. Результат показан на рис. 14 в столбце I. Теперь мы убедились, что всё совпадает. Копируем данные в соответствующие столбцы, удаляем лишние столбцы, сохраняем (в формате TXT, разумеется). Результат представлен на рис. 15.

Рис. 15
Теперь самое простое. Командой _attin считываем файл. Происходит заполнение данных в атрибутах блоков, как показано на рис. 16. Работа почти окончена, и мы уже получили задание, по которому скорость разработки колонн повысится в разы.

Рис. 16
Но нет предела совершенству. Теперь давайте выделим все блоки, содержащие, например, словосочетание «ТА3» в атрибутах (рис. 17), и придадим им цвет. После окончания нашей работы мы получим результат, анонсированный на рис. 1. Покажите этот результат тем, кто разрабатывает колонны, — и вы изумитесь их реакции. Ведь теперь осталось всегонавсего сделать колонны!

Рис. 17
Наш опыт показывает, что не всегда с первого раза удается задать оптимальные исходные данные для расчета армирования колонн в самой МКЭ-программе. Зачастую, проделав часть пути, понимаешь, что для колонн с такими-то номерами более выгодны другие угловые диаметры и т.д. Приходится возвращаться и перезадавать их. Но эта работа будет выполняться квалифицированным расчетчиком, представляющим себе все последствия изменения исходных данных для расчета армирования.
Автор считает описанную систему работы лишь рабочей моделью и надеется, что недалек тот час, когда подобные системы унификации колонн найдут свое воплощение в конечноэлементных комплексах, и конструктору останется лишь контролировать работу процесса, а не делать всё своими руками. Если ктото из читателей этих строк — как раз разработчик подобных комплексов — давайте попробуем добиться такого результата вместе!
Впрочем, и в описанном виде это не слишком сложный процесс, при должном владении Excel он за полдня позволяет провести унификацию колонн довольно сложного высотного здания.
Напоследок отмечу, что эта идея была отправлена Артемию Лебедеву на бизнес-линч, где получила весьма лестные оценки, что приятно. Расположена она по адресу: http://www.artlebedev.ru/kovodstvo/business-lynch/2008/08/01/. Нелишне будет сказать, что идея цветовой индикации типов армирования явилась плодом чтения «Ководства». Как ни смешно это звучит, но при возрасте этой технологии в 7 лет до прочтения «Ководства» она не имела цветовых маркеров, так полюбившихся руководителям групп в нашем коллективе. Воистину нет ничего более сложного, чем простые разумные решения!
Разработка заданий на КЖИ каркасов колонн. Разработка КЖИ
Основы заданий на каркасы делает расчетчик при определении типов армирования. Это происходит по простой причине: без расположения конкретной арматуры в сечении, без проверки конструктивных требований, расположения перехлестов продольных стержней, хомутов поперечной арматуры часто невозможно принять решение о возможности конкретного типа армирования. При этом, разумеется, необязательно полностью образмеривать сечения, доводить их до полной готовности — достаточно проверить принципиальную реализуемость. Результат работы расчетчика приведен на рис. 18.

Рис. 18
Далее руководитель группы доводит все сечения до уровня детализации РД. Детализированные таким образом сечения размещаются в специальном файле — «Для вставки.dwg». В этом файле собираются все сечения колонн проекта, что показано на рис. 19.

Рис. 19
Далее на основании разверток определяются конкретные длины каркасов, составляется перечень каркасов.
После этого вычерчивается комплект КЖИ. Пример перечня листов комплекта КЖИ колонн высотного здания приведен на рис. 20. Пример листа — на рис. 21. На рис. 22 показана структура внешних ссылок файла КЖИ. Видно, что файл с сечениями подключен внешней ссылкой.

Рис. 20

Рис. 21

Рис. 22
Необходимо сделать следующие примечания:
- файл с сечениями позволяет доверить самое важное — разработку сечений колонн — ответственному человеку уровня руководителя группы. В результате будут гарантированно верными все колонны в проекте, так как возможность механической ошибки при черчении исключается. Этот подход в случае нахождения ошибки также дает возможность изменить сечение один раз, в исходном файле. При этом все каркасы (а в последующем и сечения колонн, в которые они вставлены) изменятся автоматически;
- применение непечатных слоев для файла сечений актуально, как нигде больше. На рис. 19 видно, что каждое из сечений подписано на непечатном слое. Это явилось следствием одной ошибки много лет назад. Исполнитель перепутал сечения при вставке. Проверяющий проверил спецификацию, имя каркаса, расход стали — они были верными — и не обратил внимание, что вместо каркаса Кп7-1 вставлен каркас Кп8-1. На стройке не сошлись выпуски. Мы нашли выход из положения, но с тех пор обязательно подписываем каркасы на непечатаемых слоях. Больше такие ошибки не повторялись;
- при разработке колонн особое внимание надо уделять подсчету расхода материалов. Для этого на каждый каркас в Excel мы, как и в случае с плитами, заводим отдельный файл. В нем, кроме спецификации, необходимой для листа КЖИ, выполняется разбивка арматуры по диаметрам (рис. 23). Эта информация нам понадобится при разработке колонн, чтобы безошибочно рассчитывать ведомость расхода стали и гарантировать динамичность расхода материалов — от каркаса до всего здания.

Рис. 23
Разработка колонн
После выполнения предыдущих этапов осталось лишь закончить разработку колонн. На этом этапе можно рекомендовать выполнить типовые опалубки колонн тоже в общем файле — «Опалубки.dwg». Опалубку нетиповых колонн можно вычерчивать прямо в самом файле колонны.
Теперь объединяем опалубку, сечения, по месту дооформляем марку колонны (ставим высотные отметки, закладные, отличающие колонну от типовой, примечания, размеры), вставляем штамп из файла штампов, размещаем виды на листе, вставляем спецификацию и ведомость расхода стали. Включаем лист в подшивку. Результат представлен на рис. 24. На рис. 25 приведена структура внешних ссылок типовой марки колонны. На рис. 26 показан раздел подшивки с марками колонн обычного высотного здания.

Рис. 24

Рис. 25
Спецификацию и ведомость расхода стали выполняем в Excel с помощью перекрестных ссылок на расходы отдельных марок. Таким образом, при изменении любого каркаса автоматически изменится расход всей колонны.
Дадим некоторые комментарии:
- сколько колонн (как и вообще марок) размещать в одном файле — по мнению автора, вопрос из области философии. Мы стараемся размещать в одном файле все похожие колонны. Например, из ТА3 получилось три каркаса и пять марок колонн. И все пять марок мы размещаем в одном файле. Но это, разумеется, просто устная договоренность. Вы можете делать так, как вам удобно. Я бы лишь порекомендовал в области модели обводить и подписывать виды и сечения, относящиеся к одной марке, примитивом на непечатном слое, как на рис. 27. Это изрядно упрощает навигацию;
- автору часто доводилось слышать при рассказе об этой технологии: «А зачем так сложно? Зачем КЖИ, таблицы Excel?» Ответ разобьем на пункты:
- здания нужно проектировать в максимальной степени готовности к использованию индустриальной базы строительства. Разработка с применением КЖИ позволяет без потерь времени и надежности наладить производство каркасов колонн вне строительной площадки и ускорить процесс возведения здания;
- проектировщику при больших объемах тоже выгодно делить работу на потоки. Здравый смысл подсказывает, что для увеличения производительности надо превращать последовательные рабочие процессы в параллельные, чтобы можно было легко повысить производительность, просто добавив работников. Также для увеличения скорости разумно применять специализацию. Таким образом, если комплект колонн разделить на два потока — на изготовление каркасов и изготовление самих колонн, — то черчение каркасов может происходить параллельно с вычерчиванием колонн. В результате два человека могут за неделю спокойно сделать комплект колонн высотного здания;
- о таблицах и перекрестных ссылках на основе таблиц Excel. Брукс говорил: «Изменения — не есть досадное недоразумение. Это часть жизненного цикла проекта. Проектируйте в готовности к изменениям». Создавая перекрестные ссылки данных, используя внешние ссылки, вы насыщаете объект связями, обеспечивая себе возможность в дальнейшем быстро реагировать на изменения. Особенность документации КЖ в том, что именно по чертежам этого раздела строят здание. Поэтому на конструкторов ложится большая ответственность за соблюдение сроков возведения здания при минимальных сроках на внесение изменений в документацию. Поэтому наш коллектив считает разумным потратить немного больше времени на проектирование, но получить проект, изменение которого потребует минимум усилий и затрат. И это дает свои плоды: нам никогда не приходилось проектировать так, чтобы чертежи выхватывали из рук, — строители нас еще ни разу не догоняли. И ни один заказчик не может пожаловаться, что по нашей вине срывался график строительства. Даже при больших объемах изменений.
Надеюсь, приведенная аргументация поможет вам в мотивации при внедрении описанных приемов в разработку колонн. На этом описание технологии разработки колонн можно закончить. В следующей статье мы поговорим о разработке балок.

Рис. 26

Рис. 27
Данный цикл статей в ближайшее время может получить интересное продолжение. Он привлек внимание проектировщиков к идее о необходимости более внимательно изучать новые возможности AutoCAD для повышения эффективности работы. При этом учеба может проходить не на отвлеченных задачах, а на примере решения конкретных проблем проектирования ЖБК. Если вас заинтересовала возможность учебы на таких курсах, обращайтесь в московское представительство Autodesk, на форумы сообщества (http://communities.autodesk.com/?nd=home__8). Можно и просто на мой блог: http://maestros-bay.blogspot.com/. Также хочу еще раз пригласить пользователей к более активному участию в жизни Сообщества пользователей Autodesk в странах СНГ.
Кстати, предыдущие статьи цикла также можно скачать с ресурсов сообщества либо у меня на блоге.
Дмитрий Тищенко
Главный конструктор ООО «ДАКК» (г.Днепропетровск, Украина). Активист Сообщества пользователей Autodesk (community.autodesk.ru).



