T-FLEX CAD 10 легкая параметризация
Параметризация — основа проектирования
Параметрический эскиз — легкая параметризация
Диалоги параметрического эскиза: удобная параметризация
Отношения: наглядная параметризация
Редактирование: гибкая параметризация
В предыдущих номерах журнала мы начали рассказ о новой, 10-й версии популярной российской системы трехмерного моделирования и параметрического проектирования T-FLEX CAD фирмы «Топ Системы» (www.topsystems.ru). В этой статье мы более подробно рассмотрим самые интересные новинки, касающиеся параметрических возможностей системы.
Параметризация основа проектирования
В современных условиях при выборе САПР пользователи все чаще обращают внимание на возможности, предоставляемые системой в области параметризации, а руководители предприятий уже подразумевают под автоматизацией не только перенос процесса черчения с кульмана на компьютер. Требования, предъявляемые к современным системам автоматизированного проектирования, не ограничиваются удобством создания графических примитивов и оформления чертежей по ГОСТ на повестке дня появляются возможности систем в области построения ассоциативных моделей и сборок, оценивается степень простоты создания собственных параметрических библиотек, позволяющих аккумулировать накопленный опыт и в полной мере использовать имеющиеся на предприятии наработки. Сегодня проектирование на основе существующих заготовок (проектирование на основе баз знаний) дает возможность значительно сократить время выполнения проекта и количество ошибок, что часто играет решающую роль в условиях жесткой конкуренции.
Компания «Топ Системы» с 1992 года предлагает пользователям программный комплекс T-FLEX, содержащий мощную систему параметрического проектирования T-FLEX CAD. В основе параметрического ядра системы лежат современные (во многом уникальные) разработки, позволяющие создавать ассоциативные чертежи, модели и сборки и содержащие не один десяток тысяч полностью параметрических объектов.
В основе любой параметрической модели лежат, во-первых, ограничения и взаимосвязи, налагаемые на ее элементы, а во-вторых, возможность и удобство задания параметров (переменных) модели. Рассмотрим более подробно, как реализованы оба этих подхода в системе T-FLEX CAD.

Простота и удобство параметризации в T-FLEX позволяют пользователю самостоятельно создавать полноценные параметрические библиотеки без использования программирования
Геометрическая параметризация
Параметрическая модель T-FLEX состоит из двух частей элементов построения и элементов изображения. Первые непосредственно задают параметрические связи и аналогичны тонким карандашным линиям, которые затем обводятся тушью (линиями изображения). Ко вторым относятся сами линии изображения T-FLEX, а также элементы оформления: размеры, надписи, шероховатости, штриховки и т.д. При задании ограничений и взаимосвязей конструктор использует широкий набор линий построения, предоставляемых системой. К тому же наряду с самыми простыми взаимосвязями (параллельные прямые, концентрические окружности) система позволяет создавать весьма сложные параметрические объекты, такие как эквидистанты к сплайнам, полилинии и линии, заданные с помощью явных формул, использующих различные математические функции. Одни элементы построения могут зависеть от других элементов построения. Так, прямая, перпендикулярная другой прямой и проходящая через узел, зависит от исходных прямой и узла. Элементы построения могут содержать и параметры (как, например, радиус окружности или угол наклона прямой). При изменении одного из элементов модели все зависящие от него элементы перестраиваются в соответствии со своими параметрами и способами их задания. Такой способ пересчета ассоциативной модели в зависимости от положения родительских элементов и параметров называется геометрической параметризацией.
Данный подход имеет ряд преимуществ по сравнению с подходами, применяемыми в других отечественных и западных системах параметрического проектирования, а именно:
• разделение линий изображения и линий построения дает возможность более гибкого редактирования модели. Например, в процессе проектирования может выясниться, что при изменении модели данный отрезок должен быть не параллелен исходному, а иметь фиксированный угол наклона. В этом случае не нужно уничтожать саму параллельную прямую, на которой этот отрезок был построен (вместе с ней и ассоциативные взаимосвязи, от которых может зависеть часть построения), достаточно перенести линию изображения на другую линию построения;
• обеспечение высокой скорости и надлежащего уровня надежности пересчета модели в процессе ее редактирования. Известно, что при использовании геометрической параметризации время пересчета модели по мере увеличения количества параметрических объектов растет линейно, чего не удается достичь с помощью другого популярного подхода размерной параметризации. Если говорить кратко, то последовательность действий решателей, основанных на размерной параметризации, сводится к построению системы уравнений (в общем-то, нелинейных) на основе размеров, заданных пользователем, и к последующему решению этой системы различными вариационными методами. В общем случае получить решение подобной системы за линейное время не удается. Поэтому на моделях с большим количеством параметрических взаимосвязей данный способ параметризации существенно проигрывает геометрическому в скорости пересчета;
• возможность встраивать в процесс пересчета обращения к базам данных, прикладным модулям и т.д., что, естественно, невозможно в случае решения системы уравнений вариационными методами. Так, пользователь может формировать условие выбора из базы данных на основе значений переменных, полученных с помощью измерений. Использование геометрической параметризации позволяет строить проблемно-ориентированные САПР на основе T-FLEX без помощи программирования;
• возможность быстрого выявления причин возникновения ошибок пересчета у геометрического способа параметризации, характеризующегося последовательным пересчетом модели от родителей к потомкам, нет никаких проблем в плане обнаружения конкретного объекта той модели, чье перестроение привело к ошибке. Вследствие этого система позволяет быстро выявлять причины ошибок и указывать на них конструктору для внесения дальнейших изменений. Отметим, что системе в этом случае безразлично, в результате чего произошла ошибка из-за изменения топологии или из-за вырождения параметров какого-либо объекта. Вариационные же решатели в этом случае могут столкнуться с серьезными проблемами, так как не всегда ясно, какое уравнение системы приводит к отсутствию решения. Таким образом, системы, построенные на размерных параметризаторах, часто могут предоставить пользователям лишь набор тех объектов, перестроение которых привело к ошибке, а потому и поиск, и исправление ошибки в этом случае занимают у конструктора значительно большее время, что увеличивает сроки проектирования;
• интуитивность и удобство задания ограничений, поскольку построения T-FLEX отражают ход мысли конструктора, а параметрические ограничения создаются одновременно с построением модели. Создавая модель, конструктор выбирает те линии построения, которые соответствуют его представлению о необходимом ограничении, а в результате по окончании построений получается полностью параметрическая модель. Данный подход представляется более естественным, чем наложение ограничений уже после того, как чертеж будет готов, а пользователю придется опять задавать ограничения, прокручивая в голове спроектированные взаимосвязи.
Переменные в T-FLEX
Важным фактором, позволяющим обеспечить мощные возможности параметризации в T-FLEX, являются переменные. При помощи переменной может быть задан любой параметр линии построения, в том числе расстояние, на котором находится параллельная прямая, или отношение, в котором данная линия построения делит отрезок, заданный двумя узлами. С помощью переменных могут быть заданы все параметры 3D-операций T-FLEX. Но параметрами линий построения и 3D-операций вовсе не ограничивается многообразие возможностей, которые свойственны переменным T-FLEX: с их помощью можно задать практически всё от видимости детали в сборке до содержания текста на чертеже. К тому же переменные могут быть заданы и с помощью выражений, содержащих другие переменные, а также арифметические и логические операции.
Переменные служат также средством передачи информации в чертеж извне. В частности, переменная, помеченная как внешняя, при вставке чертежа в качестве детали (фрагмента) в сборку автоматически примет значение переменной сборки. Переменные могут быть считаны из текстового файла или из базы данных, что позволяет гибко менять параметры, создавая различные исполнения детали путем выбора нужных наборов значений.
Новшества 10-й версии
Ознакомившись с основными возможностями создания параметрических моделей в T-FLEX CAD, посмотрим, что же нового появилось в 10-й версии.

При работе в эскизе с включенным режимом автоматической параметризации система самостоятельно создает параметрическую модель в зависимости от фиксированных в диалоге параметров и привязок
Параметрический эскиз легкая параметризация
Одной из главных новинок 10-й версии стало появление режима автоматической параметризации, значительно упрощающего создание параметрических моделей во многих командах, а прежде всего в эскизе. Дело в том, что, предоставляя пользователю мощные инструменты параметризации, разработчики не навязывают ему непременного использования механизмов создания ассоциативных моделей (линий построения и переменных). Для создания непараметрических чертежей пользователь может работать с командой «Эскиз», обеспечивающей создание свободных линий изображения. Пользователи по достоинству оценили удобство команд эскиза, но, внося изменения в чертеж, порой жалели об отсутствии параметризации. В 10-й версии разработчики пошли им навстречу и создали режим, в котором при построении обычных объектов эскиза система сама создает параметрическую модель.
Что же нового ожидает пользователей при включенном режиме автоматической параметризации? Во-первых, все линии изображения будут создаваться на соответствующих им линиях построения, то есть при создании параллельного отрезка будет создана линия построения, параллельная линии построения, соответствующей исходному отрезку, а на ней уже будет построена линия изображения. Следовательно, при редактировании начального отрезка будут изменяться связанные с ним линии построения, так что построенная модель будет полностью ассоциативной. К тому же в разных командах эскиза количество дополнительных построений, производимых системой, будет различным. Система примет на себя всю рутинную работу, позволяя пользователю сосредоточиться на проектировании. Например, при построении прямоугольника система создаст горизонтальную и вертикальную прямые, а также параллельные им линии построения и линии изображения на них, а количество созданных линий построения в случае создания эквидистанты вообще ничем не ограничено. Таким образом, при включении режима «Автоматическая параметризация» пользователь получает возможность двумя кликами создавать десятки полностью параметрических объектов.
Для успешного применения автоматической параметризации совсем необязательно, чтобы исходный чертеж был полностью параметрическим система создаст все необходимые линии построения. Так, при создании касательного отрезка к непараметрической окружности система сама преобразует окружность в параметрическую, то есть построит линию построения «окружность» с тем же центром и радиусом, а на нее перенесет линию изображения. И уже после этого будут созданы касательная к линии построения «окружность» и линия изображения на ней.
Важно отметить, что объекты, созданные в режиме параметрического эскиза, при редактировании ничем не отличаются от остальных объектов системы, так как при их создании были использованы те же средства, которые применяются и при создании остальных параметрических моделей. Следовательно, при редактировании пользователь получает все возможности по изменению полученных ассоциативных связей.


При создании эквидистанты в режиме автоматической параметризации будут построены линии построения — параллельные прямые для отрезков и концентрические окружности для дуг
Диалоги параметрического эскиза: удобная параметризация
Диалоги получили в режиме параметрического эскиза более важную роль. Теперь с помощью диалога пользователь может не только задавать параметры модели, но и влиять на тип создаваемых линий построения. Если пользователь при создании второй точки отрезка, ввел, например, угол и расстояние, то будет создана линия построения прямая под углом. А второй узел будет построен на пересечении первой прямой с перпендикулярной ей прямой, параметром которой будет расстояние от первого узла, то есть угол и расстояние будут параметрами получившегося отрезка. Совершенно иная параметрическая модель получится в том случае, если пользователь задаст в диалоге смещение dx, dy относительно первой точки. Второй конец отрезка будет построен на пересечении линий построения, параллельных вертикальной и горизонтальной прямым, проходящим через первую точку и лежащим от них на расстоянии dx и dy соответственно. Вообще же при построении второй точки пользователь может фиксировать в диалоге абсолютные координаты X и Y, относительные координаты Dx, Dy, угол и расстояние. При этом в каждом из возможных случаев комбинации двух значений будут созданы соответствующие типы линий построения.
Подобные изменения затронули все многообразие команд и диалогов эскиза. Приведем еще один пример создание параллельного отрезка. Если пользователь зафиксирует в диалоге расстояние, то система создаст прямую, параллельную данной, с параметром «Расстояние» и узел на ней. Если же будут заданы координаты первой точки, система создаст узел на пересечении вертикальной и горизонтальной линий построения, а через него проведет прямую, параллельную исходной. Таким образом, для создания совершенно разных типов параметрических моделей пользователю достаточно лишь пару раз кликнуть в окне диалога свойств или зафиксировать соответствующие параметры с помощью горячих клавиш.
Значительным изменением в диалогах эскиза является возможность ввода переменных, что делает эскиз полноценным инструментом для создания параметрических моделей. Когда эскиз использовался для создания непараметрических моделей, в диалогах можно было вводить лишь числовые константы, но с появлением опции «Автоматическая параметризация» в диалогах эскиза стал возможен ввод любой строки. Как и в других диалогах T-FLEX, если в системе существует переменная с данным именем, она будет использована в качестве параметра линии построения. Если же такой переменной не существует, то после завершения построения будет предложено создать эту переменную.


Фиксируя значения в параметрах диалога, пользователь может создавать различные параметрические модели от узла на пересечении окружности и вертикали до узла на пересечении прямой с фиксированным углом и прямой, параллельной горизонтали
Привязки
Много новшеств появилось в 10-й версии и в работе с привязками. Привязки, доступные прежде только в эскизе, стали доступными в большинстве других команд, таких как надписи, шероховатости, вставка фрагмента, картинки, обозначения вида и др. Кроме того, во всех этих командах использование привязок стало возможно в двух вариантах. В режиме автоматической параметризации будет создана ассоциативная модель, соответствующая данной привязке. А при выключенном режиме автоматической параметризации их можно использовать для позиционирования объектов на чертеже. Например, при вставке фрагмента, имеющего две точки привязки, пользователь может после выбора первой точки в момент выбора второй поймать привязку «Горизонталь». Если автоматическая параметризация будет отключена, то фрагмент будет расположен горизонтально, а при последующем редактировании первой точки вторая будет оставаться на месте. Если же включить автоматическую привязку, то будет создана горизонтальная прямая, проходящая через первую точку и узел на ней. Соответственно при изменении первой точки будет изменено и положение прямой, а значит, и всего фрагмента.
Появились и новые виды привязок, в частности «Продолжение линии изображения», а также возможность выбора привязки «Центр окружности» как при наведении непосредственно на центр, так и при подведении курсора к самой окружности, что позволяет быстро находить центр окружностей и дуг с большим радиусом. Появился и удобный механизм контроля за выбором привязок. Поскольку в одной точке может совпадать несколько привязок, а ассоциативные модели в случае привязок «перпендикуляр» и «вертикаль» будут создаваться разные, то необходимо быстро выбирать нужную привязку. В 10-й версии пользователь может не только настроить приоритеты выбираемых привязок в диалоге установок системы, но и воспользоваться механизмом выбора из нескольких объектов, хорошо зарекомендовавшим себя в 3D. После задержки мыши на одном месте колесико переходит от традиционного для CAD-систем зуммирования в режим выбора элементов, подхватываемых в данной точке, то есть для выбора конкретной привязки пользователь не будет отвлекаться от черчения и что-то менять в настройках системы достаточно лишь на пару секунд задержать мышь и, вращая колесико, выбрать необходимую ему привязку. Следует отметить, что тип выбранной привязки и количество привязок, возможных в этой точке, будут показаны системой во всплывающей подсказке.
В 10-й версии был усовершенствован и алгоритм поиска привязок на больших чертежах. Это позволяет значительно упростить работу с привязками на чертежах, содержащих десятки тысяч объектов.


В том случае, если в одном месте совпадают несколько привязок, система автоматически покажет количество вариантов, а пользователь при помощи колесика мыши может сделать выбор
Отношения: наглядная параметризация
Одной из важнейших составляющих системы параметрического проектирования, наравне с созданием ассоциативных взаимосвязей, является их последующее отображение. Это особенно важно при исправлении ошибок проектирования, что гораздо сложнее исправления ошибок черчения, а также на этапе редактирования параметрической модели.
В 10-й версии разработчики, помимо традиционного отображения дерева взаимосвязей, в окне «Информация» каждого элемента построения предоставляют пользователям новый инструмент, позволяющий рассмотреть отношения взаимосвязи параметрической модели непосредственно на чертеже.
Отношениями называются вспомогательные объекты, предназначенные для визуализации типов параметров и отношений между элементами построения. Они не выводятся на печать и не экспортируются. Как и элементы построения, отношения бывают различных типов (параллельность, радиус и т.д.), причем тип отношения изображается в виде иконки, а при наличии родителя отношение изображается в виде стрелки, направленной от потомка к родителю. Помимо отображения связей «родитель потомок», отношения отображают и параметры, соответствующие элементам построения, а если параметр задан с помощью переменной или выражения, пользователь увидит как выражение, задающее параметр, так и его текущее значение.
Кроме того, отношения являются удобными инструментами для редактирования модели. Конструктор, не отрываясь от рабочей зоны чертежа, в прозрачном режиме может отредактировать любой из параметров, заданных отношениями. Если же параметр был задан выражением, то система сама предложит изменить значение одной из переменных, участвующих в выражении. Отношения создаются специальной командой, с помощью которой пользователь может создать и все имеющиеся в системе отношения и отношения только определенных типов, отношения для всех объектов данной модели или только для некоторых. Кроме того, пользователь может вручную создавать цепочки отношений для конкретных элементов в соответствии с иерархией их родительских объектов. При работе с отношениями теперь возможно показать или скрыть все отношения в текущем окне, что позволяет конструктору гибко управлять насыщенностью чертежа, не прибегая каждый раз к удалению или созданию объектов.

Отношения — удобные средства просмотра и редактирования параметрической модели
Редактирование: гибкая параметризация
Как уже отмечалось, наряду с созданием параметрической модели важнейшей частью параметрического проектирования является редактирование. Посмотрим, что нового появилось в 10-й версии в этой области. Прежде всего теперь команды редактирования параметрических (построенных на элементах построения) и непараметрических линий изображения объединены, и при клике в отсутствие запущенных команд по линии изображения пользователь попадает в единую команду редактирования линий изображения. После входа в команду отобразятся возможные действия по редактированию данной линии изображения, например для дуги появится иконка смены направления, а для сплайна добавления узла в сплайн. Если линия изображения была построена на линии построения, то для нее будет показано соответствующие отношение. Это позволяет отредактировать линию построения с помощью отношения в прозрачном режиме, не отвлекаясь от рабочей зоны чертежа. После выбора линии изображения пользователь может определить свои дальнейшие действия следующим кликом: при выборе узлов линии изображения можно перейти к редактированию конечных точек, а посредством клика в саму линию изображения к редактированию ее параметра. Если линия изображения построена на линии построения, то при клике в нее пользователь автоматически окажется в режиме редактирования линии построения, задающей геометрию линии изображения. Если же конечные узлы лежали, например, на линии построения окружности, то, начав их редактирование, пользователь сможет выбрать их положение на этой окружности.
Появился и режим автоматической параметризации в редактировании. Так, в случае редактирования непараметрической линии изображения при включенном режиме автоматической параметризации система автоматически создаст ассоциативную модель. Например, если при редактировании радиуса непараметрической окружности пользователь подведет ее к другой окружности и поймает привязку «Точка касания», то в случае включения автоматической параметризации системой будет построена линия построения «Окружность, касательная к окружности», а линия изображения будет привязана к ней. Таким образом, команда редактирования, совмещенная с режимом автоматической параметризации, превращается в мощное средство наложения взаимосвязей на непараметрические чертежи.
Опытные пользователи T-FLEX оценят и такие полезные улучшения, как возможность при редактировании окружности заново выбрать центр (в отличие от редактирования центральной точки в том случае, если за нее потянуть при нажатой кнопке мышки) и упрощение добавления узлов в сплайн (достаточно просто кликнуть в тот участок сплайна, где необходимо добавить новый узел). Можно сказать, что в целом команда редактирования линий изображения в новой версии стала и мощнее, и удобнее.

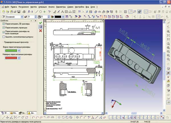
Команда пересчета размеров в середину поля допуска позволяет пересчитать как двумерные, так и управляющие трехмерные размеры. В команде реализован удобный режим предварительного просмотра, позволяющий цветом отображать сделанные изменения
Размерный анализ в T-FLEX
Одной из новых тенденций в параметризации стал размерный анализ. Иногда даже встречается подмена самого понятия «параметризация» на «пересчет модели в соответствии с изменениями размеров». Однако изменение модели при задании значений размеров ни в коей мере не исключает саму параметризацию и не добавляет в модель никакой ассоциативности. Но наличие в современных условиях такого инструмента CAD-системы представляется весьма важным. В 10-й версии T-FLEX CAD был значительно доработан модуль изменения размеров по месту, при этом использовались преимущества параметрического способа параметризации. Так, древовидная структура взаимосвязей в модели T-FLEX позволила применить метод обратного прохода по дереву, что привело к существенному увеличению скорости при поиске необходимых изменений.
В новой версии реализована и возможность изменения режимов. Если размер был поставлен на гранях, соответствующих 3D-операции, то он будет управляющим 3D-размером, а при его изменении будет меняться соответствующий параметр операции. Если же размер стоит на гранях, полученных, например, выталкиванием двух отрезков, то система, применив тот же механизм обратного прохода по дереву, найдет требуемое положение отрезков на чертеже. Таким образом в 10-й версии обеспечивается двунаправленная ассоциативность 2D и 3D.
Применение вышеуказанных подходов позволило создать в 10-й версии новую команду «Пересчет размеров в середину поля допуска». Она необходима прежде всего при подготовке модели для создания программы станка с ЧПУ. Система позволяет пересчитать в середину поля допуска как размеры на данной странице чертежа, так и размеры на всех страницах, а также управлять пересчетом размеров в 3D. Кроме того, опционально предусмотрена возможность удалить после пересчета симметричные поля допусков. Команда имеет удобный интерфейс. До тех пор пока изменения не вступят в силу, их можно просмотреть. Изменившиеся размеры при этом будут выделены другим цветом, задаваемым пользователем, что делает процесс изменения модели более наглядным и контролируемым.
Заключение
Итак, в 10-й версии популярной российской системы T-FLEX CAD появилось много интересных новшеств, связанных с проектированием параметрических моделей и сборок. Работать с системой стало удобнее, поскольку улучшения затронули и создание, и отображение, и редактирование параметрических взаимосвязей. А такая новая функция, как пересчет размеров в середину поля допуска, позволяет конструктору увеличить эффективность работы. Подробнее о новой версии системы можно узнать на сайте разработчика по адресу: www.topsystems.ru.


